Medibuilt
02 9164 9617
Home
About Us
Services
Our Process
Our Process
FAQS
Portfolio
Dental
Medical
Specialist
Case Studies
Videos
Contact
Home
About Us
Services
Our Process
Our Process
FAQS
Portfolio
Dental
Medical
Specialist
Case Studies
Videos
Contact
Home
»
Case Studies
» Punchbowl Family Practice Medical Centre
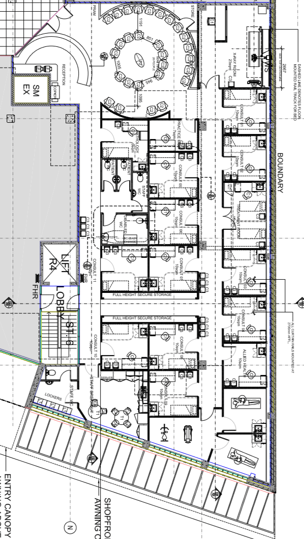
Punchbowl Family Practice Medical Centre
Project Size:
457 sqm